【西戸山タワーホウムズセントラルタワー】
駅を降りてマンションまでの道のりには、生活に必要なものを買うことができるお店がちゃんとあります。
飲食店も多くあり、テイクアウトでお家グルメもお楽しみいただけます。

おうち時間は
リビング派の家族に
嬉しい広さがあります!

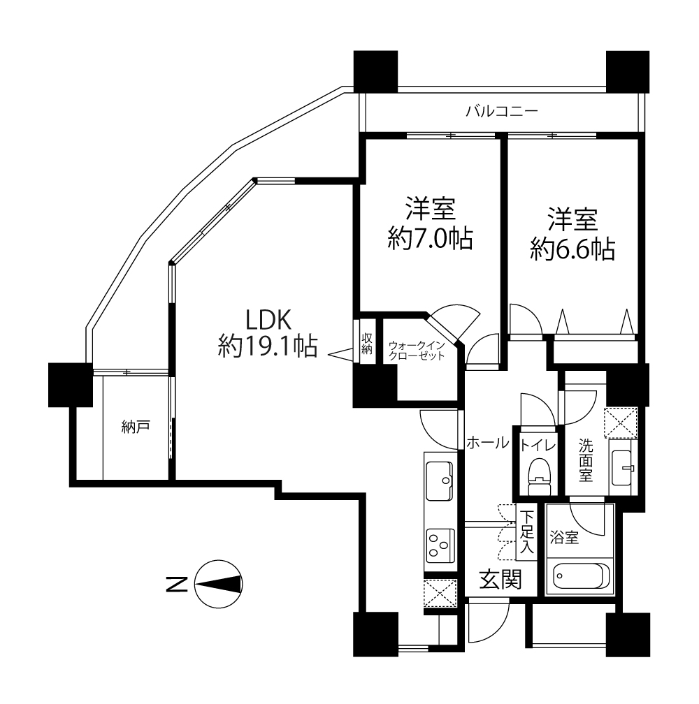
10,180万円 / 新大久保駅 徒歩6分 79.77m²(壁芯) / 2LDK+S(納戸)

【リビングダイニング】約19.1帖
大きな家具を置いてもくつろげる広さがあります。

【キッチン】
壁付けタイプのキッチンはお料理に集中できるのと、収納力が豊富です!
奥には冷蔵庫置き場やパントリーがあります。

【納戸】
スペースを有効活用した納戸が付いています。
リモートワークやオンライン授業、趣味の時間など集中タイムが快適に!

【洋室】約7.0帖
ウォークインクローゼットが付いているのでお部屋を広くお使いいただけます。

【洗面室】
嬉しい三面鏡は収納力も兼ね備えています。
洗濯機置場の上には上部吊り戸棚がついているので洗剤などをスッキリ収納!
スペースを有効活用した、リネン棚がついています。

【バスルーム】
浴室乾燥機がついているので、お天気に左右されずに洗濯物を乾かすことができます。

【玄関】
玄関には人感センサー付き照明が設置されています。
シューズボックスの扉は、お出かけ前の身だしなみチェックに便利な姿見付きです。

【都心の眺望を楽しむ、タワーマンション】
15階という高さ。東向きバルコニーにつき眺望、採光良好です。
ご内見の際にはお部屋の中だけではなく、ぜひ眺望もご覧になってください。

【都会に住む、暮らしやすさ】
もちろん、マンションのセキュリティや設備も充実しています。
モニター付きオートロック、24時間有人管理で防犯面は安心。
共用施設としてフロントサービス、ゲストルーム、集会室、スタジオ、娯楽室などがあります。

ー おうち時間はリビング派の家族に嬉しい広さがあります! ー
西戸山タワーホウムズセントラルタワー

■15階の東向きにつき、眺望良好!
■3駅3路線利用可能、新宿・渋谷へ快適アクセス
■セキュリティ充実!オートロック・防犯カメラ完備。

◆ ◆ 【無料】 見学予約 受付中 ◆ ◆

【 ココがおすすめポイント 】
◎食洗乾燥機や浴室乾燥機など嬉しい住宅設備があります。
◎リモートワーク・オンライン授業が快適になるデスク付き書斎スペースがあります。
◎隣接する公園や敷地内の公園・広場があり、お子様の外遊びも安心の距離感があります。

◆お問い合わせ窓口◆
TEL : 0120-509-095

<月々のお支払いについて>
【頭金_ボーナス払い 0円|年利0.625%_変動金利_返済期間35年】
・紹介金融機関/都市銀行・販売価格に対する融資限度額/1万円~2億円(1万円単位)・利率/年利0.625% (変動金利) ・事務手数料/50,000円・※提携ローンは、一定要件該当者が対象となります。※詳しくは、スタッフまでお問い合わせくださいませ。

LAYOUT

西戸山タワーホウムズセントラルタワー【新大久保駅 徒歩6分】の概要

物件名 西戸山タワーホウムズセントラルタワー【新大久保駅 徒歩6分】
価格 10,180万円 月々のお支払い 269,919円
販売戸数 1戸|土地権利:所有権 総戸数 587戸
間取り 2LDK+S(納戸) 専有・建物面積 79.77m²(壁芯)
バルコニー面積 13.22m² 所在階/構造・階建 15階/RC25階地下2階建
築年月 1988年1月 管理費(月額) 20,481 円
修繕積立金(月額) 22,307 円 諸費用 給湯基本料:2,022円/月|トランクルーム管理費:361円/月
管理形態 全部委託管理 管理方式 日勤
リノベーション箇所 水回り設備交換:キッチン・トイレ・洗面台・浴室 内装リフォーム:壁・床・建具・全室 リノベーション完成年月 2025年6月
所在地 東京都新宿区百人町3丁目1-4
交通 JR山手線「新大久保」駅 徒歩6分 JR総武・中央線「大久保」駅 徒歩9分
広告主の名称又は商号 株式会社WAKUWAKU 広告主の事務所の電話番号 03-6303-3025
広告主の事務所の所在地 〒153-0062 東京都目黒区三田2-4-4 YAMAZAKI BLDG
宅建業法による免許証番号 国土交通大臣免許(1)第10038号 所属団体 (公社)首都圏不動産公正取引協議会
(公社)全日本不動産協会
取引態様 媒介|現況:空室|引渡:相談
情報登録日 2025/12/26    
物件名 西戸山タワーホウムズセントラルタワー【新大久保駅 徒歩6分】
価格 10,180万円
月々のお支払い 269,919円
販売戸数 1戸|土地権利:所有権
総戸数 587戸
間取り 2LDK+S(納戸)
専有・建物面積 79.77m²(壁芯)
バルコニー面積 13.22m²
所在階/構造・階建 15階/RC25階地下2階建
築年月 1988年1月
管理費(月額) 20,481円
修繕積立金(月額) 22,307円
諸費用 給湯基本料:2,022円/月|トランクルーム管理費:361円/月
管理形態 全部委託管理
管理方式 日勤
リノベーション箇所 水回り設備交換:キッチン・トイレ・洗面台・浴室 内装リフォーム:壁・床・建具・全室
リノベーション完成年月 2025年6月
取引態様 媒介|現況:空室|引渡:相談
所在地 東京都新宿区百人町3丁目1-4
交通 JR山手線「新大久保」駅 徒歩6分
JR総武・中央線「大久保」駅 徒歩9分
広告主の名称又は商号 株式会社WAKUWAKU
広告主の事務所の所在地 〒153-0062 東京都目黒区三田2-4-4 YAMAZAKI BLDG
広告主の事務所の電話番号 03-6303-3025
宅建業法による免許証番号 国土交通大臣免許(1)第10038号
所属団体 (公社)首都圏不動産公正取引協議会
(公社)全日本不動産協会
情報登録日 2025/12/26

西戸山タワーホウムズセントラルタワー【新大久保駅 徒歩6分】に関するお問い合わせ、見学お申込みはこちら

西戸山タワーホウムズセントラルタワー【新大久保駅 徒歩6分】の周辺環境

  • まいばすけっと新宿百人町3丁目店まで220m

  • セブンイレブン新宿百人町2丁目店まで480m

  • 餃子の王将新大久保店まで590m

  • 新栄保育園まで270m

西戸山タワーホウムズセントラルタワー【新大久保駅 徒歩6分】に関するお問い合わせ、見学お申込みはこちら

PAGETOP